Kondenzační sifon podomítkový HL138N zápachová uzávěrka DN32
Kód: HL138NSouvisející produkty
Detailní popis produktu
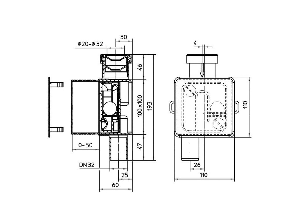
Kondenzační sifon HL138N s kuličkou podomítkové provedení
Podomítková zápachová uzávěrka ke klimatizačním jednotkám DN32 - 100x100mm, kryt bílý 110x110mm
Zápachová uzávěrka DN32 pro odvod kondenzátu s přídavnou mechanickou zápachovou uzávěrkou (kulička), podomítkové provedení. Instalace možná pouze vertikálně!! Připojení potrubí s kondenzátem pr. 20-32mm. Transparentní čistící vložka je vyjímatelná z podomítkového tělesa pro údržbu. Délkově upravitelná stavební ochranná zátka a kryt 110x110mm jsou součástí balení. Minimální hloubka pro zabudování 60mm.
Doplňkové parametry
| Kategorie: | Sifony pro odvod kondenzátu |
|---|---|
| Hmotnost: | 0.3 kg |
| EAN: | 9003076051892 |
Buďte první, kdo napíše příspěvek k této položce.
Přidat komentář
